福建一批工程项目有新进展!未来生活将有这些变化

来自版块 八闽快讯
4912
0
近期

福建一批工程项目又有新进展

一起来看

↓↓↓











福厦高铁莆田站最新进展



日前

新建福厦高铁莆田站

站房已经全面完工

正在进行最后的设备调试




福建一批工程项目有新进展!未来生活将有这些变化-1.jpg



新建莆田站站房是福厦高铁沿线第三大站房,建筑面积3.899万平方米,建筑主体地上两层、局部四层,地下一层,进出站流线形式为上进下出,最高峰聚集人数为2000人。站台总规模为3台7线,长度均为450米。



福建一批工程项目有新进展!未来生活将有这些变化-2.jpg











福州滨海快线

已有11座完成主体结构封顶



近日

福州滨海快线15座车站中

已有11座完成主体结构封顶

线路盾构施工正加快推进

已完成全部盾构区间长度的近八成

全线桥梁

预计今年完成主体结构施工




福建一批工程项目有新进展!未来生活将有这些变化-3.jpg



滨海快线起于福州火车站站,终于文岭站,呈西北至东南走向,途经福州老城区、滨海新城、长乐国际机场,总长约62.4公里。



福建一批工程项目有新进展!未来生活将有这些变化-4.jpg



滨海快线将采用时速140公里的A型电客车,实现福州市中心至滨海新城30分钟内通达、福州火车站至长乐国际机场40分钟通达,并实现与多条规划地铁线路及福平铁路换乘,助力打造闽东北协同发展区中心城区1小时交通圈。










福州象山隧道拓宽改造工程

预计今年可完工



福州市象山隧道

拓宽改造工程

预计2023年完工

届时象山隧道将成为

福州第一座双层隧道




福建一批工程项目有新进展!未来生活将有这些变化-5.jpg

象山隧道改造效果图


项目建成后,象山隧道的机动车道将由目前的4车道转变为10车道,在通行提速的同时,也为远期二环提升扩容预留条件。










福州晋安区潭桥小学

今秋正式迎新



东二环片区重要教育配套

潭桥小学项目

提前40天拿下

主体封顶的关键节点

新学校将于9月前全面建成




福建一批工程项目有新进展!未来生活将有这些变化-6.jpg



该项目总建筑面积近3.4万㎡,共有4座建筑,规划54个班级,可提供约2430个学位。










福耀科技大学项目

预计年内全部完工



福耀科技大学

预计年内全部完工

2024年秋季招生




福建一批工程项目有新进展!未来生活将有这些变化-7.jpg



福耀科技大学定位为一所综合应用研究型大学,一期规划建设34栋大楼,总建筑面积约87万㎡。校园选址福州高新区南屿镇流洲岛,总占地约1273亩,紧邻福州大学城和海西高新技术产业园。










福州滨海新城综合医院

预计年底全面完工



福州滨海新城综合医院

二期、三期项目预计年底建成

届时整个项目将全面完工交付




福建一批工程项目有新进展!未来生活将有这些变化-8.jpg



福州滨海新城综合医院由复旦大学附属华山医院、福建医科大学附属第一医院联合领办。项目建成后,周边居民可享受到更好的医疗服务。










福州新型光储充检

智能超充站项目建成



近日

福州马尾江滨东大道东江滨公园

一座新型光储充检智能超充站

正式建成

被誉为“最美超充站”




福建一批工程项目有新进展!未来生活将有这些变化-9.jpg



该项目为交通运输现代服务业项目之一,总投资2000万元,建筑面积1672平方千米,利用峰谷电差及清洁能源光伏发电给电站蓄电,可以同时满足31辆车充电,其中7台慢充、24台快充,快充功率为180千瓦时,理想状态下,相当于每个小时可以充180度电,支持快充的新能源汽车充电七八分钟行驶约200公里。除了为司机提供车辆充电服务,还可提供车辆电池检测、司机休息、如厕等服务功能,进一步助力绿色低碳出行。










福州“三宝城”项目正在公示





日前

“三宝城”地标建筑——三宝中心

项目规划建筑景观设计方案

正式进行批前公示

公示时间为

2023年5月27日至6月6日




福建一批工程项目有新进展!未来生活将有这些变化-10.jpg



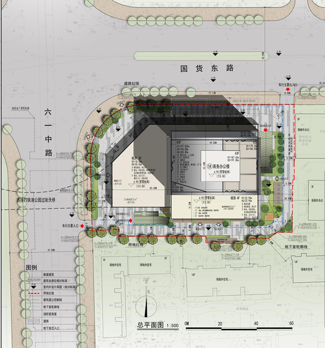
寿山石雕、软木画、油纸伞被称为“福州三宝”,位于台江区国货东路与六一中路交叉口东南角的三宝城,是福州弘扬“福州三宝”传统文化、打响闽都文化国际品牌的重点项目。



福建一批工程项目有新进展!未来生活将有这些变化-11.jpg



据了解,拟建的三宝中心为集商业、办公、酒店等功能为一体的现代化超高层建筑,建筑高度200m,总建筑面积95227.78㎡。其中地上建筑面积73098.32㎡,地下建筑面积22129.46㎡。



福建一批工程项目有新进展!未来生活将有这些变化-12.jpg











福州香格里拉中心二期



福州香格里拉中心

预计2023年第四季度正式开业




福建一批工程项目有新进展!未来生活将有这些变化-13.jpg



项目由三个主体部分组成,在现有五星级酒店福州香格里拉的基础上,新建了约5.4万㎡的购物中心、约3.6万㎡的甲级办公楼以及超千个停⻋位的地下停⻋场,整体建筑规划面积约19.7万㎡。项目建成后,将与地铁南门兜站对接,成为集高端写字楼、购物、餐饮、休闲娱乐、立体交通为一体的商业综合体。










平潭海坛海峡

水下考古遗址公园



平潭海坛海峡水下考古遗址公园

——水下考古基地(一期)

施工已经进入尾声

即将于近期完成交付




福建一批工程项目有新进展!未来生活将有这些变化-14.jpg



水下考古基地位于平潭竹屿湾区域,基地以文脉传承、空间活化、文旅融合为出发点,在保留砂厂历史记忆,满足水下考古基地基本使用需求的同时,力争展现水下遗址文化特点,打造平潭文旅亮点工程。










福州长乐汾阳溪两岸提升工程



和平街

是长乐的“千年府第街”

作为长乐和平街特色历史文化街区的

重要组成部分

汾阳溪两岸提升工程

是长乐区重点打造的项目之一




福建一批工程项目有新进展!未来生活将有这些变化-15.jpg

图片来源:长乐和平街



目前

汾阳溪两岸提升工程

总体进度已达85%

预计今年10月份完成

汾阳溪两岸的古厝

已基本修缮完成




福建一批工程项目有新进展!未来生活将有这些变化-16.jpg



和平街特色历史文化街区一期改造工程——汾阳溪两岸提升工程总投资约为8000万元,项目全线长度约700米,目前约有40名工人正加紧赶工,主要为对汾阳溪河道两侧古建筑进行修缮、新建仿古建筑、景观及市政管网改造、夜景灯光照明提升等。



福建一批工程项目有新进展!未来生活将有这些变化-17.jpg




福建一批工程项目有新进展!未来生活将有这些变化-18.jpg

汾阳溪改造后效果图











泉南扩建项目

磻溪特大桥左幅顺利贯通



5月26日

在泉南扩建项目A1

标段的磻溪特大桥施工点

随着最后一片钢板组合梁平稳安装

磻溪特大桥左幅顺利完成贯通




福建一批工程项目有新进展!未来生活将有这些变化-19.jpg



磻溪特大桥位于泉州市永春县岵山镇磻溪村西侧,是泉南扩建项目磻溪互通主线桥梁,其自西北向连接白云岩隧道,东南向连接磻溪互通主线2号桥,是泉南扩建项目A1合同段的重点控制性工程。本次贯通的磻溪特大桥左幅由五联钢板组合梁和一联槽型钢组合梁拼接而成,全长722米,桥宽为12.75米。










龙岩新机场快速通道

二期项目用地获批



5月29日

龙岩新机场环线快速通道

二期项目用地正式获批

批准面积499亩




福建一批工程项目有新进展!未来生活将有这些变化-20.jpg



该项目是龙岩市2023年十大重点工程项目之一,是龙岩新机场道路连接线的重要组成部分,属于龙岩新机场连接龙岩城区的要道。项目总投资约9.17亿元,路线全长约5.98公里,按一级公路标准建设。










龙岩市未来城整合提升规划

及二期城市设计公示



为打造智慧引领、

活力共享、山水交融的

龙岩北部新城

龙岩市自然资源局5月29日发布

龙岩市未来城整合提升规划

及二期城市设计公示

公示时间为

2023年5月29日至6月28日




福建一批工程项目有新进展!未来生活将有这些变化-21.jpg



该项目规划范围南至北三环路、北至南三龙铁路,东、西以公王山、鸡禽山、黄田山等山脚为界,用地面积合计8.06平方公里,建设用地面积782公顷,规划总人口4万人。打造智慧引领,产城人文景融合示范标杆;活力共享,宜居宜业宜游的创智新城;山水交融,生态野趣休闲的北部花园。



福建一批工程项目有新进展!未来生活将有这些变化-22.jpg











国道G228线泉港段最新进展



国道G228线泉港段项目终点为

前黄镇香芹村与惠安交界处

截止目前

前黄镇各阶段工作均已按节点完成

房屋协议签约已达90%




福建一批工程项目有新进展!未来生活将有这些变化-23.jpg



国道G228线是我省普通国省道干线公路网规划“八纵十一横十五联”的纵一线,其中泉港段是泉州市“聚城畅通”工程的重要组成路段,是泉港区至泉州市区的市政快速主干道。规划路线全长约17.93公里,总投资约54.84亿元。










国道G324线大磨山隧道

左洞漳州境内顺利完成掘进



5月30日上午

国道G324线漳州台商投资区

过境段公路工程

大磨山隧道左洞

顺利完成漳州境内掘进

目前厦门境内还剩130米未施工

预计7月中旬可以贯通




福建一批工程项目有新进展!未来生活将有这些变化-24.jpg



国道G324线漳州台商投资区过境段(奥特莱斯大道至厦门界)公路工程起于奥特莱斯大道与龙江大道交叉口,顺接在建国道 G324 线漳州段,路线向东北方向延伸下穿厦蓉高速,设置隧道穿越大磨山与国道 G324厦门段连接,路线总长约 2.561 公里,全线按双向四车道、一级公路技术标准、设计时速 80公里/小时 。该项目是漳州市交通运输局开展“断头路”专项攻坚行动督导项目之一。


综合自福建公路、福建交通、福州日报、新福建、人民网福建频道、海峡网、平潭网、福传泉港、掌上长乐、龙岩发布
编辑:荆子玉、王家菁、陈乐遥、王路遥
闽商通(www.fjbiz.com)免责声明
部分素材来源于网络,文章内容仅为作者观点,不代表本站立场,如有侵犯您的权益,请及时联系,我们将第一时间做出处理。

全部评论 0

热文

  • 3 天
  • 7天

所属版块

说说你的想法......
0
0
0